WasteCare Corporation - Trash Compactors, Balers, Recycling Equipment, Waste Equipment and Related Products

 

Home  >  Sitemap  >  Balers  >  60 Inch  >

TEXTILE BALER

Note: Textile Baler with Rear Chute and Conveyor configuration has been discontinued 

For Textile Baler less the Conveyor & Automated Rear Chute click here

For High Volume Baling with Conveyor & Automated Rear Chute click here

 

Textiles are not only recycled to be reused in their original form.  They are also recycled into other products such as mattresses, speaker cones, car insulation, furniture padding, and other items.  Types of textiles that can be considered for recycling are clothes, furniture upholstery, carpet, sheets, towels, and some footwear.  This textile baler with an automated rear chute and conveyor will streamline your textile recycling operation, creating the most efficient baling and recycling operation possible.
 

 

 

Textile Baler with Rear Chute and Conveyor 

 

 

                          60CC-207T - BALER FOR TEXTILES / CLOTHES  (Discontinued)

 

Request Info on Multiple Products - (Secure Area)

This 60" High Volume Textile Baler was designed specifically for Clothing / Textiles.

With a 7" Cylinder and plenty of Horsepower and platen force this baler can produce up to 3 bales per hour at up to 1,200 to 1,400 pounds per bale. The baler comes standard with an automated rear chute and a conveyor.  

When your main focus is on baling Textiles and clothing, this High Volume, High Capacity Textile Baler is the right choice.

Comparison Chart on 60" Vertical Balers  

Textile Baler Performance Information

Bale Size

30” x  48” x  60”

Bale Volume

50 Cubic Feet

Cycle Time

55 Seconds (No Load)

Estimated Bale Weights

Material

Bale Weight

Density Lbs/Cu Ft  Loose/Baled

Bales / Hr

Textiles

Up to 1,200 - 1,400 Lbs

4 / 28

Up to 3

Note: Performance Rates, Bale Weights, and Bale Densities are subject to many factors such as Material Pre-Bale Densities, Feed rates, Moisture Content and other variables.

 

Textile Baler - Hydraulics   

Main Pumps

16.1 GPM - Fixed Volume Vane

System Pressure

2600 psi

Main Cylinder

7” Bore, 4.5” Rod,  48” Stroke

Ram Face Pressure

61.61 psi

Overall Platen Force

100,048 Lbs

Oil Reservoir

41 Gallon Capacity

Hydraulic Manifold

D05 Pattern, Internal Relief Valve Subplate Circuit

Feed Chute Cylinders

 2.5” Bore, 10” Stroke, 1 3/8” Rod

Textile Baler - Electrical

Main Motor

20 HP  -  208v / 230v / 460v – 3 Phase

Enclosure

NEMA 1 Gasketed

Controls

UL/CLU Listed  CSA  - PLC Controlled

Motor Type

TEFC High Efficiency

 

Textile Baler - Dimensions & Structural

Overall Height

150

Overall Width

80

Overall Depth – Main Unit

87

Overall Depth w Conveyor

300”

Feed Opening

27” x 60”  Charge Dimensions

Weight

12,000 lbs – Baler Only (+ Conveyor @ 5,000 lbs)

 

Textile Baler - Conveyor Specs

48" Wide Belt, 150 PVC w/rubber cleats on 48" centers

1.5 HP Motor  - 208v / 230v / 460v - 3 PH

Conveyor Controls are in Baler Control Panel

Approximate 2 Cubic Yard Hopper with a width of 60"

18" Conveyor sides

Enclosed return pan

Conveypr Speed - 35 FPM

 

High Volume Textile Baler

Safety -  UL / CLU Listed  CSA  - PLC Controlled

Product meets or exceeds all ANSI Z245.5 and OSHA standards.
NEMA 1 Gasketed
Bale Height Adjustable from 42" - 48" Nominal
Safety Interlock Circuit on Bale Door & Safety Gate
Counterbalanced Feed Door for Easy Open
3-6" Retainer Dogs Front & Back

Soft Shift, Low Shock Hydraulic Circuit

Dual Chain Semi-Automatic Bale Ejection System
Factory Wired for Easy Installation
Slotted Front Door (available as an option)
Automated Photo-Eye operated read feed chute
Manually operated cycle to assure level load in feed chamber

 

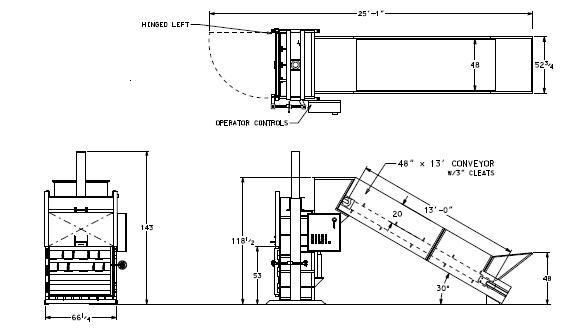
60CC-207T High Volume Textile Baler - Diagram

(with Automated Rear Chute & Conveyor)

Textile Baler High Volume Diagram



Note: Specifications, Dimensions & other product details may vary slightly upon delivery due to continuous product progressions and improvement. If exactness is required on any item(s), confirm in writing before ordering. In our efforts to provide products with the most up to date engineering and design, we reserve the right to change specifications, dimensions and other product details without notice.

Performance may vary depending upon application.

Products must be installed and operated according to required standards, codes, regulations and safety procedures.


Copyright 1997-2013 WasteCare Corporation. All Rights Reserved.